设为首页
|
加入收藏
+021-5971-0315 130 2016 0550
欢迎来电:全国统一服务热线
首页
关于我们
公司简介
资质认证
公司文化
产品中心
环保垃圾屋
移 动 厕 所
移 动 建 筑
厕 所 租 赁
工程案例
新闻动态
人才招聘
客户留言
联系我们
产品分类
Product classification
环保垃圾屋
单排垃圾屋
双排垃圾屋
备桶垃圾屋
升降垃圾屋
地埋垃圾屋
其他垃圾屋
装配式移动厕所
单元式厕所
装配式厕所
车载式厕所
拉臂式厕所
巴士式厕所
其他式厕所
厕 所 租 赁
装配式移动建筑
驿站
清洁楼
道班房
办公楼、人才公寓、学校
岗亭
其他
工程案例
电话:+021-5971-0315
传真:+021-59710800
地址:上海市青浦区外青松公路5328号
QQ:1299902388
咨询热线:
130 2016 0550
工程案例
位置:
首页
> > 工程案例
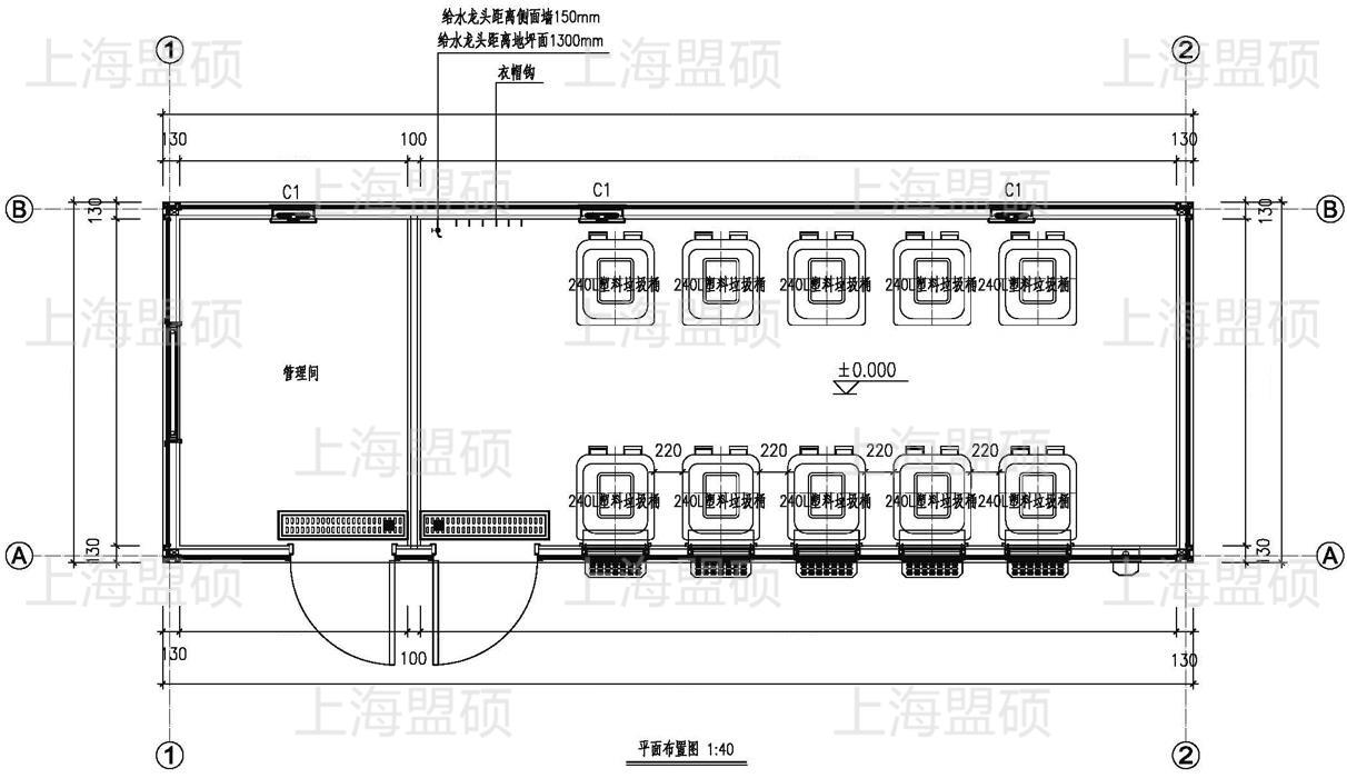
垃圾厢房-上海交通大学
发表时间:
2022-02-25
阅读次数:
垃圾厢房-上海交通大学
上一篇:
垃圾分类环保驿站-东台市
下一篇:
环保垃圾屋-上海松江广富林
在线客服
客户服务
在线留言
分享到...
110
扫描二维码